Anthea Camplese


La traversée tranquille

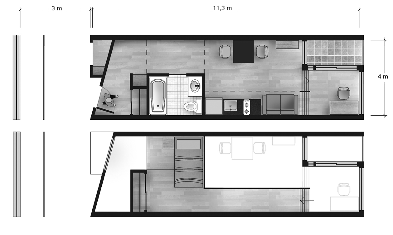
Il est possible de greffer, au sein du projet de réaménagement et de conservation du patrimoine des Habitations Jeanne-Mance, un projet de logements à prix modique pour étudiants.

Chaque logement serait composé de deux niveaux permettant une facilité de circulation dans un environnement sécuritaire. Le concept offre ainsi aux résidents un nouvel espace pour les générations futures tout en préservant leur sentiment d’appartenance à l’égard des lieux.

Programme d'étude :
Design de l'environnement

Enseignant :
Charles-Antoine Perreault

Coéquipière :
Laurence Sylvestre